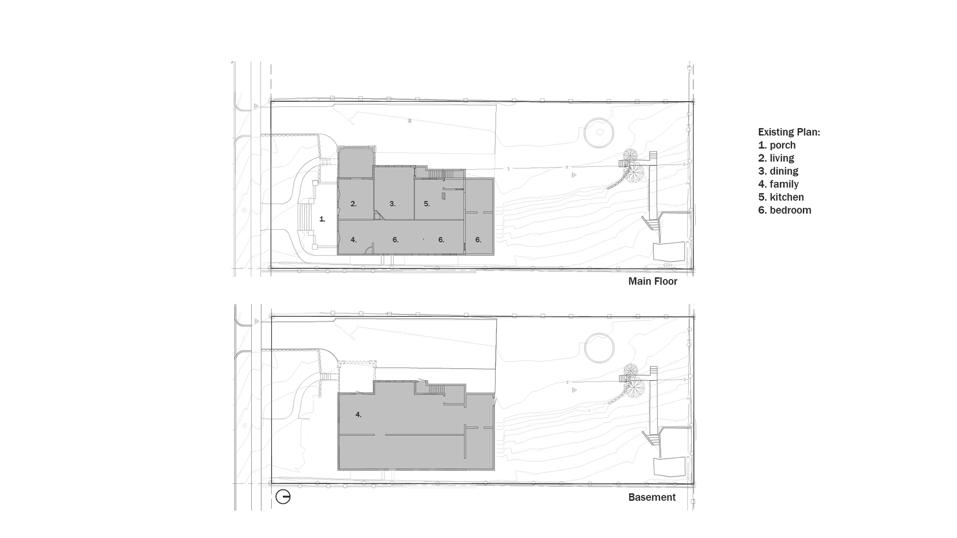
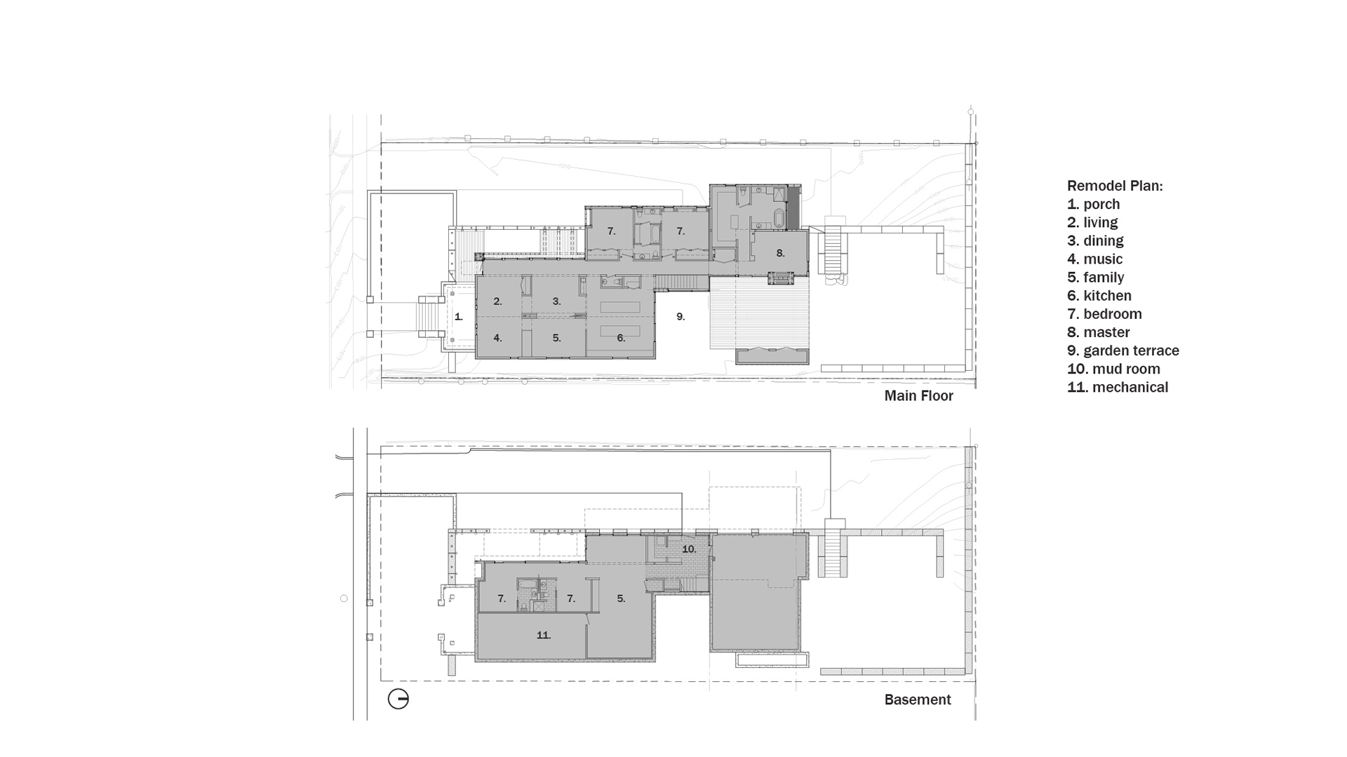
Laird House is a remodel of a mid-century Craftsman style home for a family of four. The design team sought to reference and acknowledge the importance of place and create an expressive relationship of materials without mimicking the Craftsman style. Multiple plan configurations were studied, and the final design featured an addition on the north and west sides of the home, connected by a long and naturally lit hallway, all anchored by an outdoor living space.